• bg en ru
BG PROPERTY INVEST - Top properties for sale in Bulgaria
  • Начало
  • ЗА НАС
  • ЗА БЪЛГАРИЯ
  • УСЛУГИ
    Нашите услуги Обзавеждане Българско гражданство Застраховки Юридически услуги Счетоводни услуги Ипотека
  • Контакти
  • Новини
  • Обадете ни се
  • bg
  • en
  • ru
BG PROPERTY INVEST - Top properties for sale in Bulgaria
  • Начало
  • ЗА НАС
  • ЗА БЪЛГАРИЯ
  • УСЛУГИ
    Нашите услуги Обзавеждане Българско гражданство Застраховки Юридически услуги Счетоводни услуги Ипотека
  • Контакти
  • Новини
  • Продажби
  • Наеми
  • Комплекси

Резиденция "Плаза" ж.к. Изгрев, Бургас.

Изгрев
"> "> "> "> "> "> "> "> ">

Описание

Цени на имотите в комплекса: от 38000.00 до 67000.00 €
Квадратура на имотите в комплекса: от 55.00 до 86.00 м2

Резиденция “Плаза” е проект за нов жилищен комплекс, в центъра на квартал “Изгрев”, в град Бургас.

Резиденцията ще се намира в близост до булевард “Транспортна” и мол “Плаза”, наблизо има и парк, подходящ за разходки и почивка.  

Непосредствено близо до резиденцията има и големи супермаркети, автобусна спирка, както и заведения.

Архитектурата и дизайна на резиденцията, са характерна запазена марка на строителната фирма, като при строежа на резиденцията ще се използват висококачествени материали, а конструкцията ѝ ще бъде от стомана и бетон.

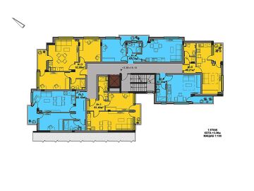
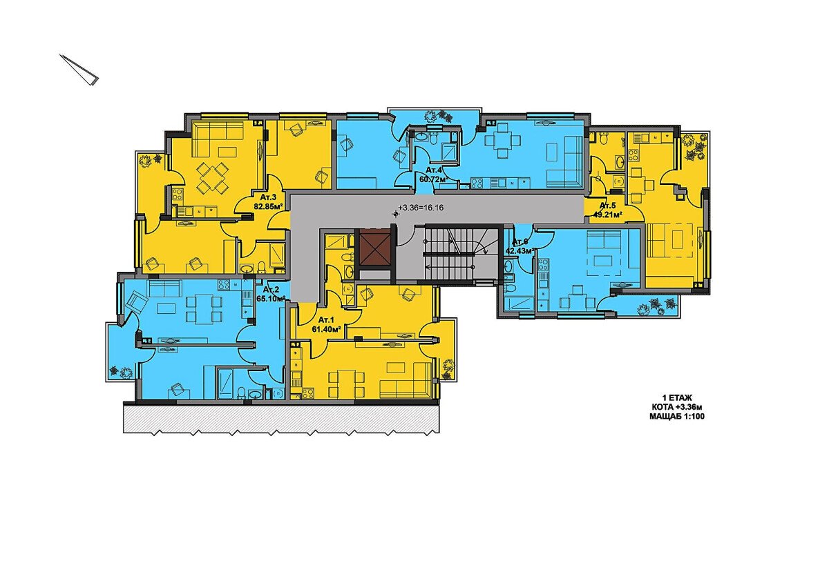
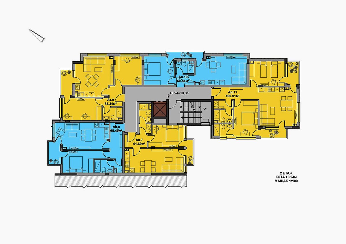
Резиденция “Плаза” представлява шестетажна ъглова сграда, което осигурява повече светлина и разнообразен план на апартаментите, които ще имат един вход с асансьор, и ще разполага с партер и сутерен.

Апартаментите в “Плаза” са 29 на брой - едноспални и двуспални - просторни и функционални, а на партера има помещение, което може да се използва за различни комерсиални цели - например като магазин.

В резиденцията ще има и подземен паркинг.

Строителството на резиденция “Плаза”, се очаква да бъде завършено през септември 2019 г.

Разпределение

 

Преимущества

  • Паркинг
  • Охрана
  • Локация
  • В ГОЛЯМ ГРАД
  • БЛИЗО ДО ЛЕТЕН КУРОРТ
  • Гледка
  • Към двора
  • Локални удобства
  • Летище
  • Магазини, Заведения, Ресторанти
  • Парк
  • Автобусна спирка
Изпратете запитване
Ref. ID:
C57
Локация:
Изгрев
Дата на публикуване:
17.07.2018
Дата на последно обновяване:
06.12.2018
Download

Повече информация за Изгрев

Dolorem et possimus autem qui saepe temporibus natus laboriosam. Soluta iure laboriosam voluptatem blanditiis. Eum dolore vel fugiat et optio quas. Iusto repellendus repellendus iusto suscipit ut sit sed. Nobis atque unde dolores molestiae ea temporibus exercitationem maiores. Non dolores et nisi et enim id enim consequatur. Maiores accusantium temporibus itaque tempora sint aut dolorem. Aperiam ratione odio quis enim. Sit culpa nesciunt placeat adipisci odio. Illo quis et numquam quia. Corrupti aspernatur impedit omnis quis. Rerum et nesciunt ea explicabo alias. Labore quia a neque laboriosam. Maxime non magni molestiae ut quo libero. Iste libero dignissimos cum et ut ex officiis. Doloremque quia aliquid omnis. Voluptatibus quos magni quod voluptatibus sit debitis optio. Temporibus consequatur maxime quo minima ut laboriosam qui perspiciatis. Deleniti aut consectetur laborum et. Ab odit quo molestiae quidem.


Изпратете запитване

Вашето запитване се изпраща ...
Моля изчакайте!
BG PROPERTY INVEST Top properties for sale in Bulgaria

За компанията

  • ЗА НАС
  • ЗА БЪЛГАРИЯ
  • Контакти
  • Карта на сайта
  • Новини

УСЛУГИ

  • Нашите услуги
  • Обзавеждане
  • Българско гражданство
  • Застраховки
  • Юридически услуги
  • Счетоводни услуги
  • Ипотека

Търсене

  • Продажби
  • Наеми
  • Комплекси

Бюлетин

Моля изчакайте докато заявката ви се обработва ...

Имоти в България

  • Апартамент
  • Къща, Вила
  • Офис
  • Магазин
  • Склад
  • Ресторант, Бар
  • Хотел
  • Парцели
  • Промишлени парцели
  • Земеделска земя
  • Инвестиционни проекти
  • Гараж
  • Спа и Уелнес центрове

© Фестивал ЕООД 2018. Всички права запазени.
info@bgpropertyinvest.com, Phone: (+359)554-25-000 Address: Bulgaria, Sunny Beach, Main Road, complex Michelle, office 1

Developed by Stoitsov.net & Filip Traikov